SILVERLEAF

Silverleaf offers spacious, low-maintenance living with three bedrooms and two bathrooms. Enjoy open-plan living and a stylish kitchen with breakfast bar, flowing to a private rear deck. Includes a master with ensuite and walk-in robe, full laundry and double carport. Available in standard or modified layouts.

Features include:

  • Single-level, easy-access design

  • Light-filled open plan living, dining and kitchen

  • Modern kitchen with island bench, stone benchtops and quality appliances

  • Well-appointed bathroom with quality fittings and finishes

  • Generous main bedroom with built-in or walk-in wardrobe

  • Flexible third room ideal for study, hobbies or guests

  • Reverse-cycle air conditioning and ceiling fans

  • Covered outdoor entertaining deck.

Enquire about this home:

Elly White

Display home inspections: Monday to Saturday by appointment

With standard and modified floor plan options, the Silverleaf gives you flexibility in how your home is configured.

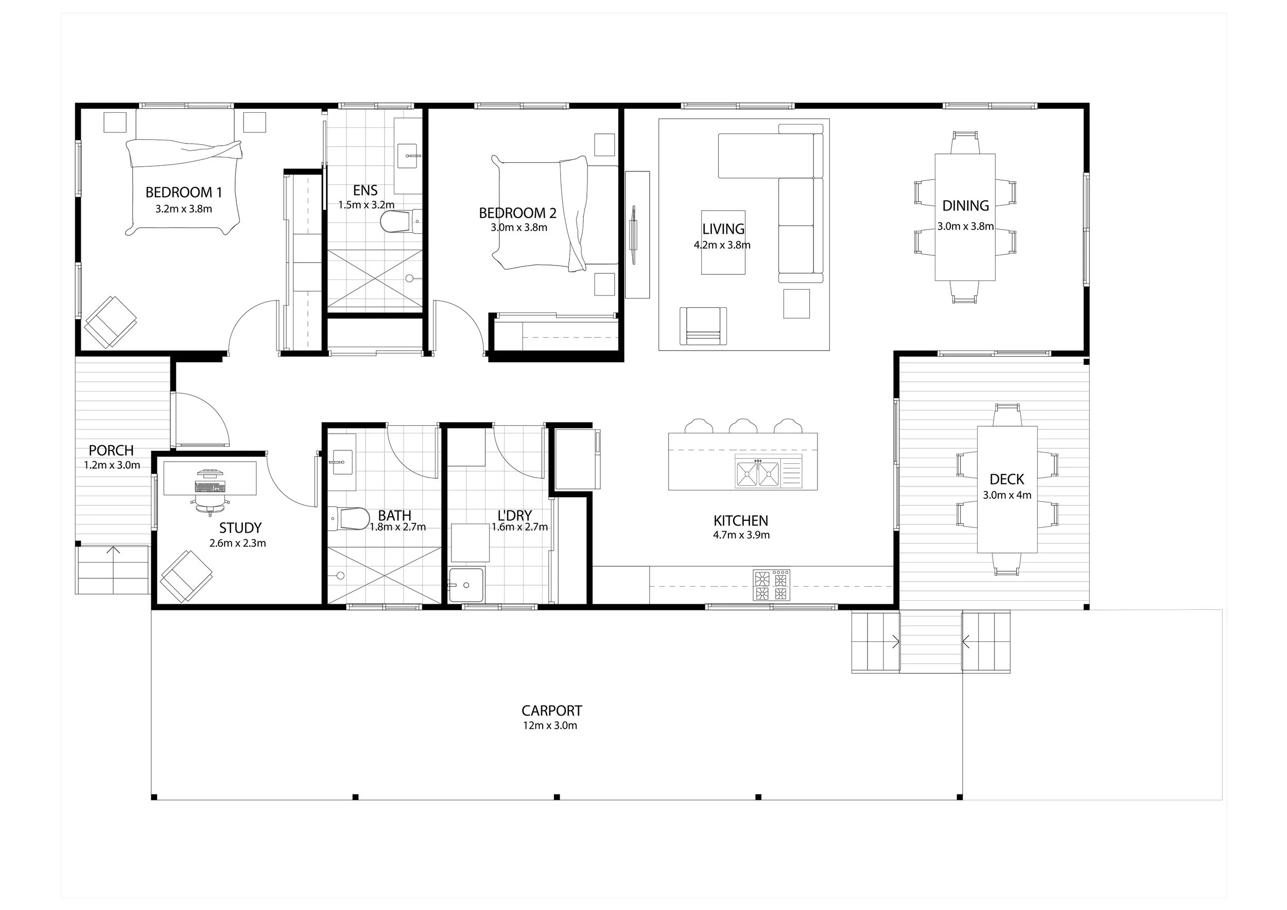
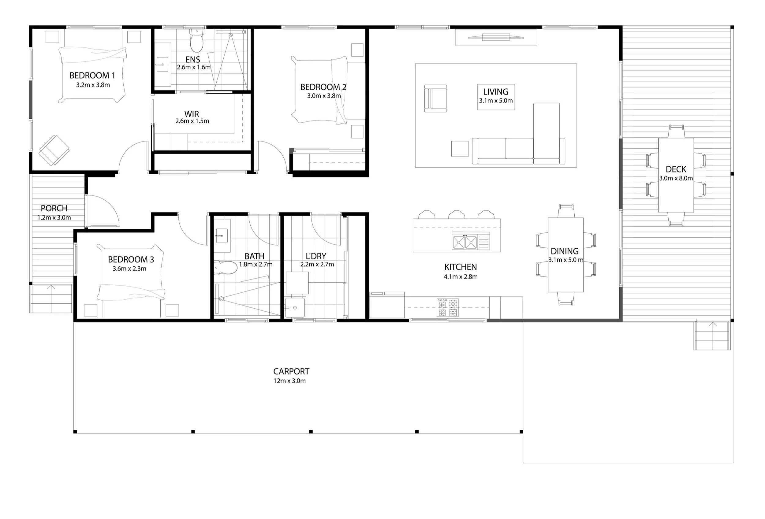
Silverleaf Floorplans

Standard Layout
Total Area: 182.80m2

Modified Layout
Total Area: 165.20m2

Come and see if it feels right

Reading about Bayway can be helpful. Experiencing the community in person is often what makes the difference.

A personal tour gives you the chance to:

  • Walk through the community.

  • Explore the resort-style facilities.

  • View display homes.

  • Meet the team and ask questions.

There’s no obligation — simply an opportunity to see whether it feels like the right place for your next chapter.